946 PA-390, Cresco, PA 18326, United States
Email Us
(570) 656-8692
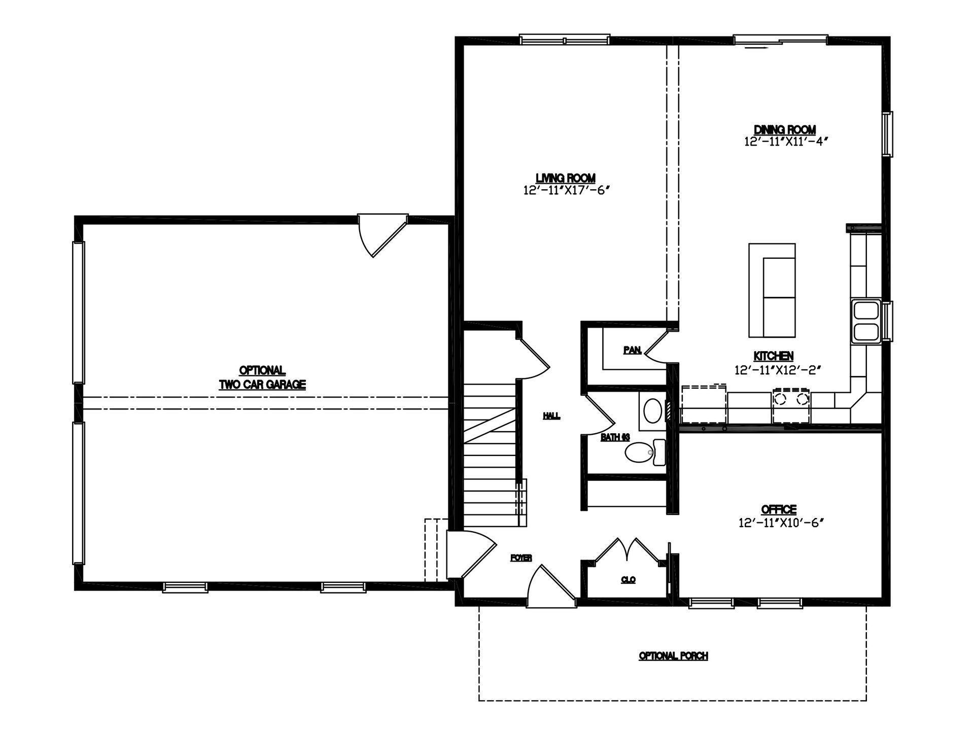
Two-Story
The “Middleswarth” is a beautiful two-story plan that features three bedrooms, three baths, and an optional garage.
3 Bedrooms
3 Bathrooms
1980 Sq Ft
Address
946 PA 390, Cresco, Pennsylvania 18326, United States
Contact Details
Jonaide@wtahomes.com
Quick Links
© | All Rights Reserved | Site by